広島電鉄「高須」電停徒歩2分の好立地・最終1区画! ご要望(間取り・カラーイメージ・住宅設備等)を取り入れた家づくりができます!
特徴ピックアップ!
地盤調査済 / 2沿線以上利用可 / スーパー 徒歩10分以内 / 市街地が近い / 陽当り良好 / 駅まで平坦 / 閑静な住宅地 / 整形地 / 都市近郊 / 平坦地 / 周辺交通量少なめ
広島電鉄「高須」電停徒歩2分の好立地・最終1区画! ご要望(間取り・カラーイメージ・住宅設備等)を取り入れた家づくりができます!
特徴ピックアップ!
地盤調査済 / 2沿線以上利用可 / スーパー 徒歩10分以内 / 市街地が近い / 陽当り良好 / 駅まで平坦 / 閑静な住宅地 / 整形地 / 都市近郊 / 平坦地 / 周辺交通量少なめ
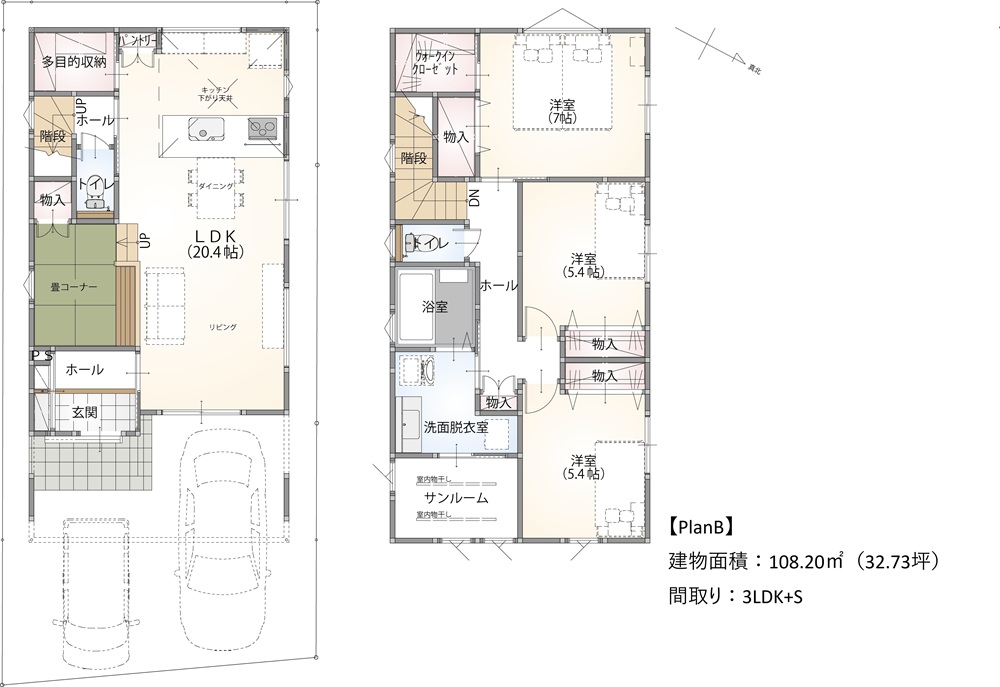
土地面積:122.89㎡(37.17坪)

古田保育園
自発的・意欲的に生活や遊びができる環境を構成し、0歳~5歳までの子どもたちが年齢を超えた交流(異年齢児交流)を通して大きい子に対する憧れや小さい子に対して思いやりの気持ちを育みます。

広島市立高須小学校
「思いやりの心をもって、生き生きと活動する子どもの育成」を目標に掲げ、子ども一人ひとりの育ちを温かく支える学校運営が特徴。

広島市立古田中学校
「つながる のびる 古田中」をスローガンに、生徒が主体的に活動し、共に成長できる環境づくりが特徴。

スパークニュー庚午店
営業時間 9:00~24:00
曜日毎にお買い得な特価市が開催。

ウォンツ庚午店
営業時間 9:00~22:00
医薬品・食料品・日用品・ペット用品など幅広い品揃えが特徴のドラッグストア。

庚午第一公園
広電「高須」駅から徒歩3分
ボール遊びができる「広場エリア」と小さなお子様も楽しめる「遊具エリア」に分かれており、トイレ・手洗い・休憩スペースも完備した子育て世帯に嬉しい造りの公園。

セブンイレブン広島高須2丁目店
営業時間 24時間営業

広島高須郵便局
営業時間 郵便窓口 平日9:00~17:00
ATM 平日9:00~19:00、土日祝9:00~17:00

広島銀行庚午支店
営業時間 平日9:00~15:00(11:30~12:30は窓口休業)
「ちょっとだけ見てみたい」そんな気持ちでも大丈夫。
フォームからご都合のよい日時を選んで、ご予約ください。スタッフ一同、心よりお待ちしております。