こんにちは!広島県を中心に住まいに関する事業を幅広く展開している総合不動産企業「Sunsハウジング」です。
廿日市で住まいをお探しの皆さま、お待たせしました!
人気の大野エリアで新築住宅2現場3棟、建築条件付き土地1現場2区画が分譲開始いたします。
広島市中心部へアクセスしやすいアクセス環境や、商業施設や利便施設が整った暮らしやすさがうれしい廿日市「大野エリア」。ゆったり子育てできる住環境と、廿日市ならではの充実した子育て支援が注目され、子育て世代にはとくに人気です。
話題のエリアで複数分譲地からお選びいただけるチャンスに、ぜひご検討ください。
人気物件については完成前にご契約済みとなることも予想されるため、気になる点がございましたら、お早めにお問い合わせを!
大野エリアの複数の現場をまとめてご覧になりたいといったご要望も大歓迎です。
\現地見学会実施中!3月中旬頃から構造見学も随時受付/
こちらで地元スタッフが見つけた大野エリアの周辺グルメ&とっておきスポットをご紹介しています。現地見学の際に、ぜひお立ち寄りください。
●Sunsスタイル廿日市下の浜 限定1棟

〇交通
JR山陽本線「大野浦」駅徒歩18分/おおのハートバス「橋本」バス停徒歩3分
〇学校区
大野西小学校/大野中学校
〇特長
・人気のⅡ型キッチン&横並びダイニングキッチンで料理、配膳、片付けがスムーズ
・ファミクロ、ランドリールーム、テラスをまとめた間取りで、外干しも部屋干しも快適
・3台以上の複数台駐車も可能なゆとりの外部スペース
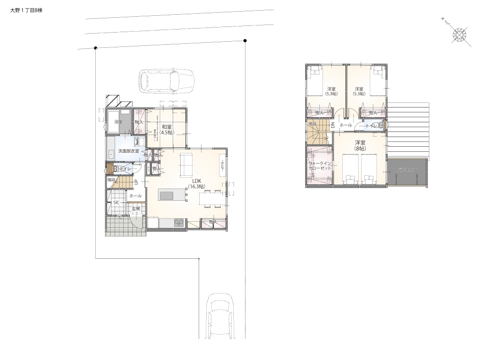
●Sunsスタイル廿日市大野1丁目 2棟
〇交通
JR山陽本線「大野浦」駅徒歩15分/おおのハートバス「大野支所前」バス停徒歩3分
〇学校区
大野西小学校/大野中学校
〇A棟特長
・洗面脱衣室にもサンルームにも室内物干し完備。サンルームは書斎などの居室使いも◎
家族構成や暮らしの変化に合わせてフレキシブルに活用できます
・畳スペースを合わせれば20帖超の開放的なストレートリビング
・2台並列駐車+αのゆとりがある外部スペース

〇B棟特長
・人気のⅡ型キッチン&横並びダイニングキッチンで家事動線を短縮
・シューズインクロークやウォークインクローゼットなど適材適所の収納が充実

●大野中央1丁目 2区画(建築条件付き土地)
〇交通
JR山陽本線「大野浦」駅徒歩15分/おおのハートバス「大野支所前」バス停徒歩4分
〇学校区
大野西小学校/大野中学校
〇A区画特長
・平坦地に位置する60坪超のゆとりある敷地。大野の中心エリアでは希少な広々整形
・南西向きで前面棟もない、日当たり良好な敷地

〇B区画特長
・平坦地に位置する60坪超のゆとりある敷地。大野の中心エリアでは希少な広々整形
・南西向きで前面棟もない、日当たり良好な敷地

3棟の物件に、Ⅱ型キッチン、ファミクロ、ランドリールーム、サンルームなど住まいの最新トレンドを集約しました。
ワンフロアで家事が完結するレイ アウトや、暮らしの変化に合わせてフレキシブルに活用できる空間など、使い勝手の良い間取りにもご注目ください。
また、注文住宅をご希望の方のために建築条件付き土地2区画もご用意!
いずれも大野エリアでは希少な60坪超の整形地です。

